Zentrumsnahe Obergeschosswohnung für Einzelpersonen am dem 60. Lebensjahr!

26603 Aurich, Wohnung zur Miete

Direktanfrage

* Pflichtangaben
 SSL-verschlüsselt

Eckdaten

  • Objekt ID
    803 (1/803)
  • Objekttyp
    Wohnung
  • Adresse
    26603 Aurich
  • Wohnfläche ca.
    58 m²
  • Zimmer
    2
  • Schlafzimmer
    1
  • Badezimmer
    1
  • Balkone
    1
  • Heizungsart
    Zentralheizung
  • Wesentlicher Energieträger
    Gas
  • Baujahr
    1996
  • Zustand
    gepflegt
  • Verfügbar ab
    01.02.2026
  • Kaution
    980,00 €
  • Kaltmiete
    490,00 EUR
  • Nebenkosten
    300,00 EUR
  • Ihr Zuhause
    in guten Händen.

Ausstattung / Merkmale

  • ✓ Abstellraum
  • ✓ Balkon
  • ✓ Dusche
  • ✓ Einbauküche
  • ✓ Kabel-/Sat-TV
  • ✓ Keller
  • ✓ Offene Küche
  • ✓ Personenaufzug

Objekt­beschreibung

Beschreibung

Zentrumsnahe Obergeschosswohnung in einer ruhigen Seniorenresidenz in unmittelbarer Nähe zur Auricher Innenstadt!

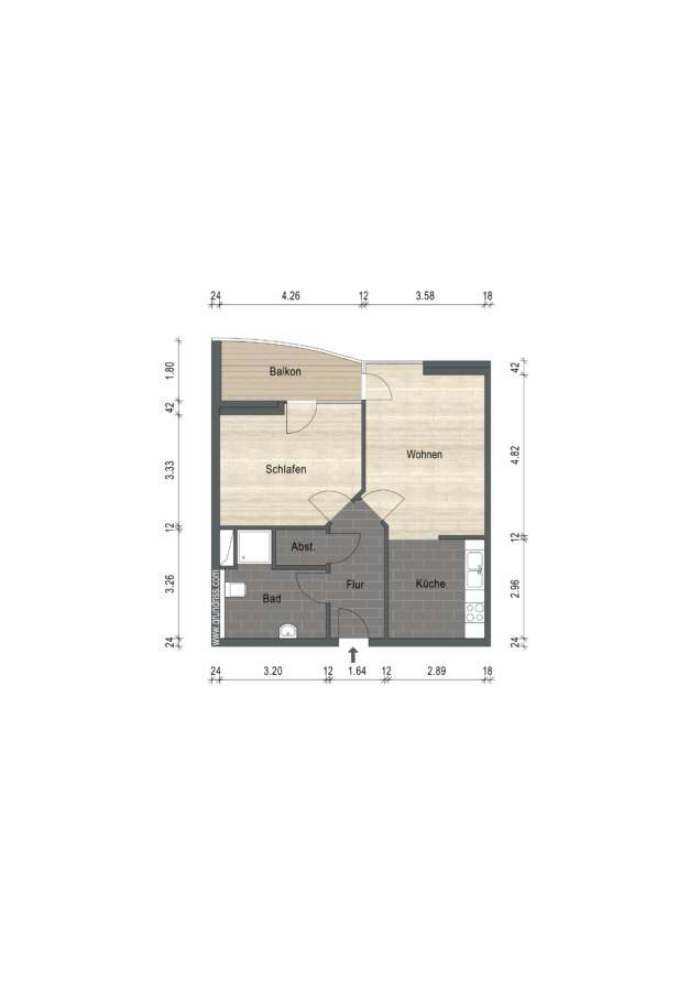
Die Wohnung befindet sich im ersten Stock und ist über einen Fahrstuhl zu erreichen. Der Grundriss teilt sich auf in:
einen Wohnungseingangsbereich, eine offene Küche mit funktionsfähiger Einbauküche, einem Wohn- und Essbereich mit Zugang zum Balkon, ein gemütliches Schlafzimmer, einem Badezimmer mit Dusche und Waschmaschinenanschluss und einen Abstellraum.
Ein eigener Kellerraum sowie ein gemeinschaftlicher, externer Abstellraum für Mülltonnen und Fahrräder gehören ebenfalls zu der Wohnung.

Die Außenanlage ist parkähnlich angelegt und lädt zum gemütlichen Spazieren ein.

Ausstattung

  • ideale Lage zur Innenstadt
  • gepflegter Allgemeinzustand
  • ruhige Hausbewohner
  • funktionsfähige Einbauküche vorhanden
  • ansprechender Laminatboden im Wohn- und Schlafzimmer
  • Badezimmer mit Dusche (erhöhter Einstieg)
  • sonniger Balkon
  • kein fester PKW- Stellplatz vorhanden

Gesucht werden ruhige Mieter ab dem 60. Lebensjahr, die an einem langfristigen Mietverhältnis interessiert sind.
Eine Haustierhaltung ist gegebenenfalls nach Absprache möglich.
Bei den Bildern der Dusche und des Kellerraumes handelt es sich um Vergleichsbilder aus ähnlichen Wohnungen.

Sonstiges

Die monatliche Nebenkostenvorauszahlung beträgt 300,- EUR inkl. der Heizkosten.
Die Stromkosten rechnet der Mieter direkt mit dem Versorgungsträger ab.

Bei Abschluss eines Mietvertrages fällt eine Mietkaution in Höhe von zwei Monatskaltmieten an.

Bitte haben Sie Verständnis dafür, dass zur Vereinbarung eines Besichtigungstermins im Vorfeld eine Mieterselbstauskunft auszufüllen ist. Diese erhalten Sie, nachdem eine E- Mail Anfrage über das Portal von Ihnen gesendet wurde (Anbieter kontaktieren).

Bei auftretenden Fragen oder für weitere Informationen stehen wir Ihnen selbstverständlich gerne zur Verfügung.

Wir freuen uns auf Ihre Anfrage per E- Mail unter moin@yu-immo.de !

Wir weisen darauf hin, dass die Inhalte (Angaben, Pläne, Unterlagen etc.) der Exposés vom Veräußerer/ Vermieter stammen und wir keinerlei Haftung auf Richtigkeit und Vollständigkeit übernehmen.
Es obliegt daher unseren Kunden, die darin enthaltenen Objektinformationen und Angaben au Ihre Richtigkeit hin zu überprüfen.

Alle Immobilienangebote sind freibeliebend und vorbehaltlich Irrtümer, Zwischenvermietung oder sonstiger Zwischenverwertung.
Das Angebot ist ausschließlich für Sie bestimmt, sodass eine Weitergabe an Dritte unzulässig ist und zu Schadensersatz führen kann.

Direktanfrage

* Pflichtangaben
 SSL-verschlüsselt

Lage

Ruhige und ansprechende Lage in der Auricher Innenstadt.

Ein vielfältiges Angebot an Einkaufsmöglichkeiten für den täglichen Bedarf und darüber hinaus finden Sie im Caro und in der Innenstadt, welche zu Fuß in kürzester Zeit erreicht werden können.

Tolle Restaurants, Lokalitäten und Cafés finden Sie ebenfalls in der nahegelegten Innenstadt.

Das beliebte Auricher Schwimmbad ist ebenfalls in wenigen Minuten zu Fuß zu erreichen.
Das Kino erreichen Sie in weniger als 5 Minuten mit dem Fahrrad.

Der beliebte Ems- Jade- Kanal befindet sich in unmittelbarer Nähe und lädt zum Spazieren, Joggen und Radfahren ein.

Google Maps

Mit dem Laden der Karte akzeptieren Sie die Datenschutzerklärung von Google.
Mehr erfahren

Karte laden

Die dargestellte Position der Immobilie ist nur eine ungefähre Angabe.

Ick proot ok
geern Platt.

Immobiliendaten-Import und Darstellung für WordPress: WP-ImmoMakler