Ein perfektes Anlageobjekt mit zusätzlicher Lagerfläche im Ortskern von Werdum!

26427 Werdum, Mehrfamilienhaus zum Kauf

Direktanfrage

* Pflichtangaben
 SSL-verschlüsselt

Eckdaten

  • Objekt ID
    756 (1/756)
  • Objekttypen
    Mehrfamilienhaus, Renditeobjekt
  • Adresse
    26427 Werdum
  • Etagen im Haus
    2
  • Wohnfläche ca.
    351,68 m²
  • Grund­stück ca.
    1.376 m²
  • Nutzfläche ca.
    60 m²
  • Gesamtfläche ca.
    517,67 m²
  • Zimmer
    15
  • Schlafzimmer
    8
  • Badezimmer
    6
  • Heizungsart
    Zentralheizung
  • Wesentlicher Energieträger
    Gas
  • Baujahr
    2016
  • Zustand
    neuwertig
  • Status
    vermietet
  • Stellplatz:
    7 Stellplätze
  • Provisionspflichtig
    Ja
  • Käufer­provision
    3 % vom Kaufpreis inkl. MwSt.
  • Kaufpreis
    655.000 EUR
  • Ihr Zuhause
    in guten Händen.

Ausstattung / Merkmale

  • ✓ Abstellraum
  • ✓ Dusche
  • ✓ Einbauküche
  • ✓ Fliesenboden
  • ✓ Kabel-/Sat-TV
  • ✓ Kein Keller
  • ✓ Laminatboden
  • ✓ Offene Küche
  • ✓ Tageslichtbad

Objekt­beschreibung

Beschreibung

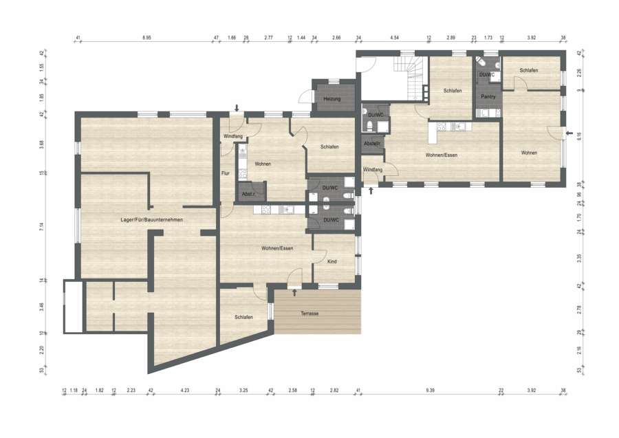
Modernes, gut vermietetes Sechsfamilienhaus sowie weiterer Lagerfläche im Ortskern von Werdum.

Dieses Mehrfamilienhaus bietet Platz für sechs Wohnungen sowie Lagerfläche und ist im Jahr 2015 kernsaniert worden.

Die Wohnungen teilen sich folgendermaßen auf:
Wohnung 1: Diese Erdgeschosswohnung bietet auf 67 m² Platz für eine offene Küche mit einer Einbauküche und offenem Wohn- und Essbereich, ein gemütliches Schlafzimmer, einen Flur, ein modernes Badezimmer, ein weiteres Zimmer sowie einem Abstellraum. Des Weiteren gehört eine Terrasse sowie ein externer Abstellraum und ein PKW- Stellplatz zu der Wohnung.

Wohnung 2: Diese Wohnung hat eine Größe von 51 m² und teilt sich auf in eine offene Küche mit einer Einbauküche und einem offenen Wohn- und Essbereich, einen Flur, ein Schlafzimmer, ein ansprechendes Duschbad sowie einen Abstellraum. Im Außenbereich gehört ein externer Abstellraum sowie ein PKW- Stallplatz zu der Wohnung.

Wohnung 3: In dieser Wohnung befinden sich auf 40 m² verteilt eine offene Küche mit einer Einbauküche sowie einem offenem Wohn- und Essbereich, ein Schlafzimmer, ein modernes Badezimmer mit Dusche und ein praktischer Abstellraum. Weiter gehört ein externer Abstellraum und ein PKW- Stellplatz zu der Wohnung.

Wohnung 4: Diese Wohnung erstreckt sich ebenfalls auf 40 m² und teilt sich auf in eine offene Küche mit ansprechender Einbauküche sowie offenem Wohn- und Essbereich, einem gemütlichen Schlafzimmer und einem ansprechenden Duschbad. Zu der Wohnung gehört außerdem ein Terrassenbereich, ein externer Abstellraum und ein PKW- Stellplatz.

Wohnung 5: Diese Obergeschosswohnung bietet auf 50 m² Platz für eine offene Küche mit einer Einbauküche und einem Wohn- und Essbereich, einen Flur, ein Duschbad, ein Schlafzimmer und einen praktischen Abstellraum. Auch hier gehört im Außenbereich ein externer Abstellraum sowie ein PKW- Stellplatz zu der Wohnung.

Wohnung 6: Diese Wohnung im Obergeschoss ist die größte Einheit in dem Sechsfamilienhaus und erstreckt sich auf 99 m² Wohnfläche. Aufgeteilt ist diese in eine gemütliche Küche mit moderner Einbauküche, ein geräumiges Wohnzimmer, ein Schlafzimmer, eine Diele, ein Büro oder Gästezimmer, ein modernes Badezimmer mit Dusche und Wanne und einen Hauswirtschaftsraum mit Waschbecken.
Weiter gehört ein sonniger Balkon, ein Dachboden mit ausreichend Staufläche sowie eine Garage zu der Obergeschosswohnung.

Im hintereren Bereich des Hauses befinden sich Lagerfläche und Abstellmöglichkeiten mit einem Sozialraum und einem WC.

Des Weiteren befinden sich auf dem hinteren Bereich des Grundstücks eine große Auffahrt sowie drei Garagen.

Aktuell sind alle Wohnungen fest vermietet. Die monatlichen Mieteinnahmen (Kaltmiete) belaufen sich auf 2.405,00 €.

Ausstattung

  • optimales Renditeobjekt mit guter Mieterstruktur
  • ideale Lage zwischen Neuharlingersiel, Esens und Wittmund
  • modernisierter Allgemeinzustand
  • neuwertige Einbauküchen
  • neuwertige Duschbäder, davon eins sogar mit Badewanne
  • Waschmaschinenanschlüsse befinden sich jeweils in den Badezimmern
  • ansprechende Laminatfußböden
  • weiße Innentüren
  • zentrale Gasheizung – Abrechnung erfolgt mittels Wärmemengenzähler über die Nebenkosten
  • sonnige Terrassen/ Balkone
  • PKW- Stellplätze direkt am Haus
  • alle Wohnungen sind an berufstätige Personen oder Rentner ohne Haustiere vermietet

Bitte beachten Sie, dass die Bilder teilweise vor Einzug der jetzigen Mietparteien entstanden sind.

Sonstiges

Für weitere Informationen oder zur Vereinbarung eines Besichtigungstermins stehen wir Ihnen selbstverständlich gerne zur Verfügung.

Telefonisch erreichen Sie uns unter 04975/ 777 82 10 oder per Mail unter moin@yu-immo.de.
Wir freuen uns auf Ihren Anruf oder Ihre Anfrage per Mail!

Wir weisen darauf hin, dass die Inhalte (Angaben, Pläne, Unterlagen etc.) der Exposés vom Veräußerer/ Vermieter stammen und wir keinerlei Haftung auf Richtigkeit und Vollständigkeit übernehmen.
Es obliegt daher unseren Kunden, die darin enthaltenen Objektinformationen und Angaben auf Ihre Richtigkeit hin zu überprüfen.

Alle Immobilienangebote sind freibleibend und vorbehaltlich Irrtümer, Zwischenverkauf- und Vermietung oder sonstiger Zwischenverwertung.
Das Angebot ist ausschließlich für Sie bestimmt, sodass eine Weitergabe an Dritte unzulässig ist und zu Schadensersatz führen kann.
Bei Verkaufsobjekten sind die Grunderwerbssteuer, Notar- und Grundbuchkosten vom Käufer zu tragen.

Energieausweis

  • Energieausweistyp
    Verbrauchs­ausweis
  • Ausstellungsdatum
    14.10.2025
  • Gültig bis
    13.10.2035
  • Gebäudeart
    Wohngebäude
  • Baujahr lt. Energieausweis
    1929
  • Primärenergieträger
    Erdgas L
  • Endenergie­verbrauch
    118,10 kWh/(m²·a)
  • Energie­effizienz­klasse
    D
0 25 50 75 100 125 150 175 200 225 250+ H G F E D C B A A+ H G F E D C B A A+ Endenergieverbrauch 118,10 kWh/(m²·a)

Direktanfrage

* Pflichtangaben
 SSL-verschlüsselt

Lage

Ansprechende Lage mitten im Ortskern von Werdum.

Ein Bäcker befindet sich auf der gegenüberliegenden Straßenseite.
 
Der wunderschöne Hafenort Neuharlingersiel sowie die Nordsee ist in wenigen Minuten zu erreichen und direkt vor der Haustür lädt die Natur zum Erholen, Spazieren, Radfahren und Verweilen ein.
Den Siel- und Fischerort Carolinensiel erreichen Sie mit dem Auto in ca. 15 Minuten.
 
Die beliebte Stadt Esens ist in lediglich 10 Autominuten zu erreichen und auch die Stadt Wittmund ist in unter 15 Minuten mit dem Auto zu erreichen.

Hier finden Sie Einkaufsmöglichkeiten für den täglichen Bedarf und darüber hinaus sowie zahlreiche Ärzte und Apotheken.

Google Maps

Mit dem Laden der Karte akzeptieren Sie die Datenschutzerklärung von Google.
Mehr erfahren

Karte laden

Die dargestellte Position der Immobilie ist nur eine ungefähre Angabe.

Ick proot ok
geern Platt.

Immobiliendaten-Import und Darstellung für WordPress: WP-ImmoMakler